Opis nieruchomości
Wolnostojący budynek na działalność gospodarczą np. SZKOŁA, PRZEDSZKOLE, BIURO, USŁUGI, firma KOMPUTEROWA, firma ARCHITEKTONICZNA, itp.
BUDYNEK na osiedlu mieszkaniowym KAROLEW, blisko Dworca Kaliskiego i Al. Włókniarzy
Trzy kondygnacje: parter, I piętro i II piętro , na każdej kondygnacji po ok.100 m, razem 300 m.
PARKING dla NAJEMCÓW - 3 miejsca w cenie najmu
CENA : 9000 zł + VAT + plus zużycie mediów
KAUCJA : 14 000 zł
- WOLNOSTOJĄCY budynek z parkingiem na osiedlu mieszkaniowym
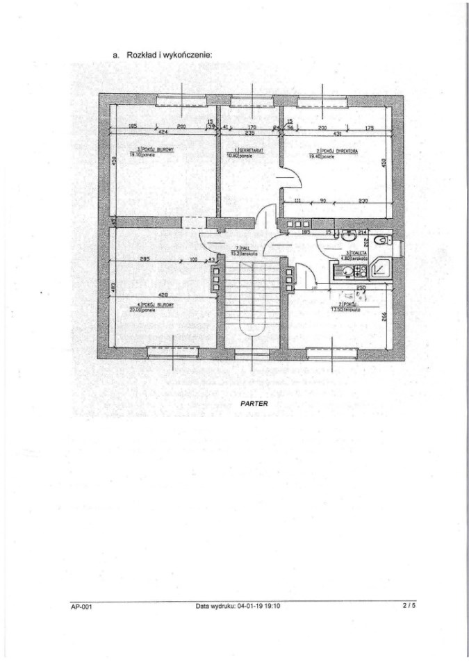
- ROZKŁAD POMIESZCZEŃ.
PARTER - 103 m : 4 POKOJE, pomieszczenie socjalne - KUCHNIA, WC z prysznicem, hol i klata schodowa,
I PIĘTRO - 102,60 m : 4 POKOJE, pomieszczenie socjalne - KUCHNIA, WC z prysznicem, hol i klata schodowa,
II PIĘTRO - 103,20 m : sala konferencyjna, 2 pokoje, pomieszczenie socjalne - KUCHNIA, WC z prysznicem,
Wysokość pomieszczeń ok. 2,80 .
PARKING, w ramach czynszu najmu 3 miejsca
Możliwość montażu tablicy reklamowej na ogrodzeniu.
WYKOŃCZENIA i MEDIA :
- elektryczność, woda, kanalizacja, CO i ciepła woda - SIEĆ MIEJSKA - własny węzeł cieplny
- OKNA PCV
- PODŁOGI - WYKŁADZINY i TERAKOTA
- ŚCIANY GŁADZIE GIPSOWE
- ŁAZIENKI I KUCHNIE - glazury i terkoty
- klatka schodowa terakota
Bardzo blisko do tramwaju i autobusu.
300 m - BUDYNEK - DOM biurowy na ogrodzonej działce, wewnątrz osiedla mieszkaniowego, parking na Najemców, linie cyfrowe ISDN, alarm z monitoringiem.
DOBRY STANDARD. Blisko Dworca Kaliskiego i Al. Włókniarzy
PLANY W BIURZE.
- UWAGA! Oferty prezentowane na naszych stronach nie stanowią oferty w rozumieniu Kodeksu Cywilnego, a są jedynie zaproszeniem do rokowań. Podane dane mają charakter wyłącznie informacyjny i mogą odbiegać od stanu faktycznego. Opis obiektu został sporządzony na podstawie informacji przekazanych przez Oferującego. Oferta może być już nieaktualna. Prosimy o telefon.
Nota prawna
Opis oferty zawarty na stronie internetowej sporządzany jest na podstawie oględzin nieruchomości oraz informacji uzyskanych od właściciela, może podlegać aktualizacji i nie stanowi oferty określonej w art. 66 i następnych K.C.Szczegóły



